ZHZY-JCY401
|
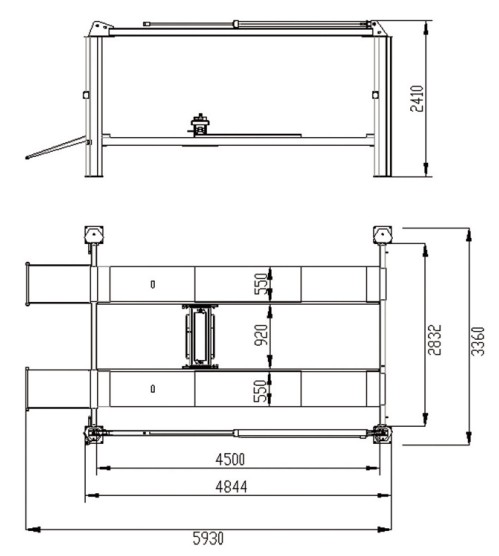
主要技术参数:
Main Specifications and Technical Parameters:
![]()
特点简介:
1、采用电动、手动、气动解锁
2、液压动力单元配置节流装置,可随时调整下降速度
3、液压油缸驱动,钢丝绳传动,升降平稳安静
4、设置钢丝绳控制安全锁,具有钢丝绳断裂保护功能,操作更安全
5、采用电动联动锁,八点锁紧,操作方便
6、可随意锁定在需要的高度进行作业,安全可靠
7、跑到间距可调,适合不同轮距的车辆
8、配有二次举升机小车,可选用手动、气动、液压举升
Features:
1、Adopt the electric release ,manual and pneumatic release。
2、Hydraulic power unit configuration throttling device ,they can always adjust the rate of decline .
3 、Hydraulic cylinder drive,rope drive ,quiet and smooth lifting .
4、With wire control security lock,with a wire rope fractureprotection,operation safety.
5、Adopt electrical release ,eight -point locking system,easy to operate.
6、can be locked in the desired height of operation ,safety and reliability
7、Runway spacing is adjustable for different wheel base vehicle
8、With the second lift pulley
|
||||||||||||||||


